Quantcast

Township Council Approves ‘Concept’ Of ‘Peace And Nonviolence’ Monument Park On Open Space

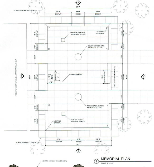
The proposed layout of the “Peace and Nonviolence” monument park that was presented to the Township Council Aug. 14 for approval. The council instead decided to approve the concept of placing such a park on township-owned open space.

The Township Council on Aug. 14 approved the idea of placing a “Peace and Nonviolence” monument park on township open space, but not before some testy exchanges and surprises, not the least of which was that council members would be voting on it at all.

While it OK’d the idea of a monument park there, the council balked at approving a proposed concept plan for the park, and also refused to tell its township manager to speed up the approval process.

Don’t Miss Out!

No other media outlet covering Franklin Township brings you the depth of information presented by the Franklin Reporter & Advocate. Period. We are the only truly independent media serving the Eight Villages.

But we can only do that with your support. Please consider a yearly subscription to our online news site; at $37 a year, it’s one of the best investments you can make for yourself.

We also offer monthly and quarterly subscription plans.

To subscribe, please click here.

Existing members, please click here.

Check Also

Wedding Fees, Pet, And Convenience Center Ordinances Introduced By Township Council

Ordinances that expand who can conduct marriages, change the late date for pet registrations, and …